咨询热线
15201603266,15201507299,全国热线:400-008-2003
一、食品工厂设计服务流程
事先沟通→现场测量→设计图(初稿)→客户沟通→设计方案→施工图纸
二、提供给客户的成果
规划图——整体厂区规划图
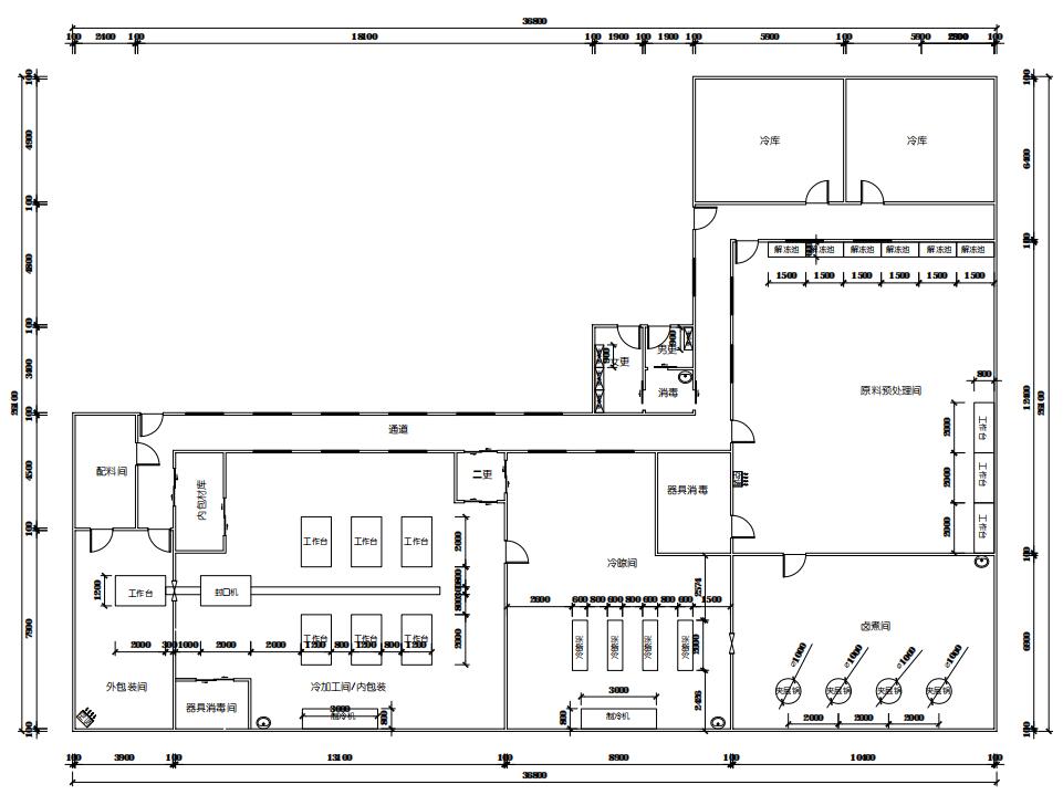
平面图——功能间布局图、设备布局图、人流物流线路图、车间空气净化消毒示意图、鼠害虫害控制图
施工图——排水立面图、排水图、平面布置图、强电线路图、通风布置图、照明线路图、天棚轻钢龙骨结构布置图等。

三、我们的优势
专业规划——我公司技术人员均具备丰富的食品行业从业经验,熟悉工厂设计相关标准,能根据企业具体情况进行规划,避免车间设计不合理造成的返工。
经验丰富——我公司已为数百家企业(北京港田食品有限公司、蜀海(北京)投资有限公司、北京乐一生蜂胶生化高新技术有限责任公司、北京蜂鸟蓝鲸科技有限公司、北京华裕食品有限公司等)提供工厂设计图纸,吸取了国内外知名企业在工厂设计上经验和理念,能为客户提供科学合理的工厂规划。
节省成本——提供合理的施工建议,全程监控施工过程。

四、客户常见疑难解答:
1、北京食品企业在车间面积上有什么要求?
答:加工车间使用面积不小于300平方米,库房面积不小于150平方米。
2、正博和源设计的图纸不符合生产许可的要求怎么办?
答:退还车间设计费。
3、一般情况下完成车间设计需要多长时间?
答:平面设计7个工作日,如果加上施工图15个工作日。
五、如何联系我们?
联系电话:15201503266 15201603266 (均微信同号)
六、合同下载
附件:食品工厂设计标准合同下载
七、成功案例(部分)






更多信息,请扫码关注“食品安全与管理服务”公众号
